快適な暮らしとこれからの発展、そして資産価値。
トップ
コンセプト
ロケーション
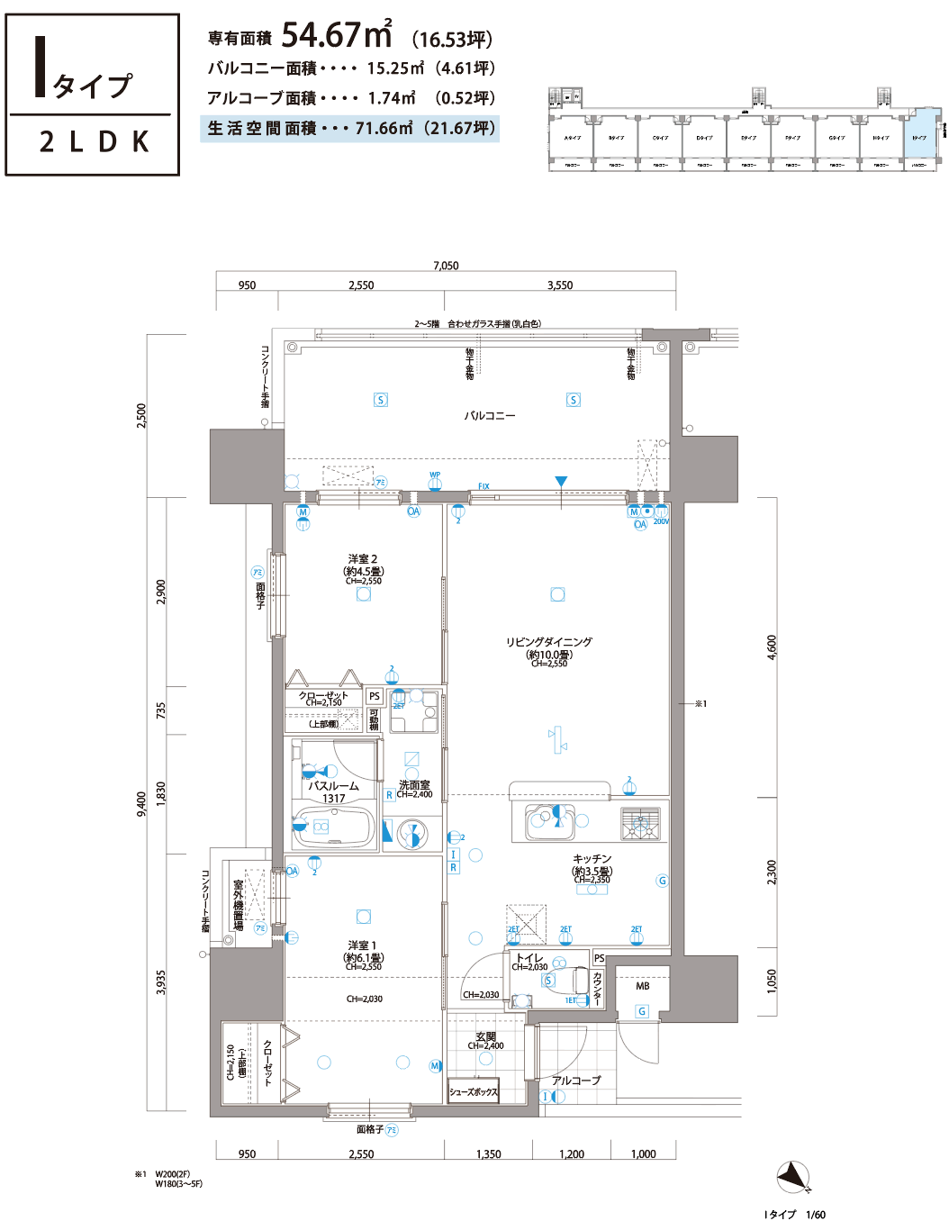
ルームプラン
設備・仕様
物件概要
トップ
>
ルームプラン
> I type